Artist Studio - Project Complete
The Brief:
A garden studio set within a south London conservation area for the supremely talented artist Chloe Early.
We enjoyed talking with Chloe about her process of working - from which her key requirements were defined:
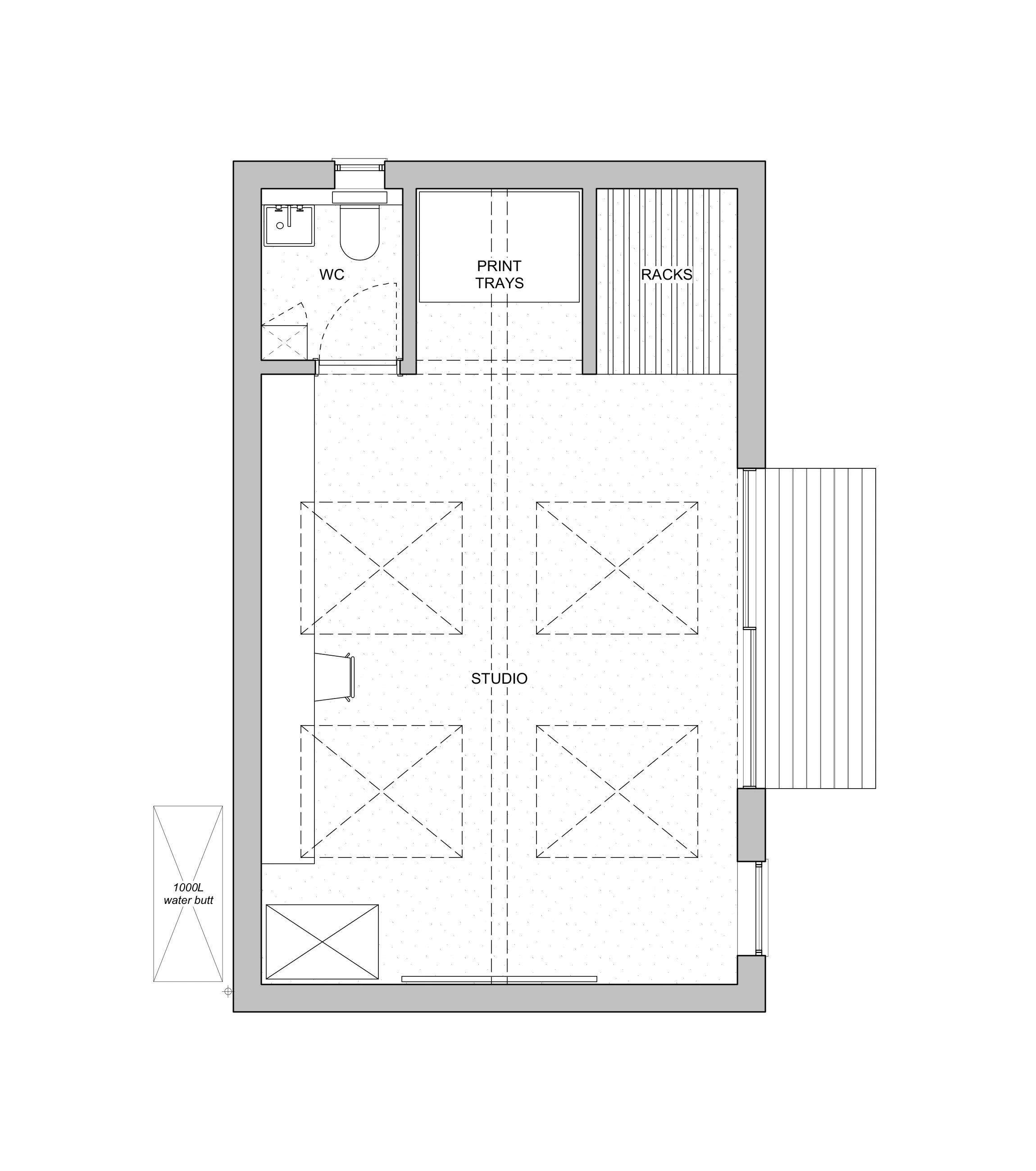
Internal studio space of 6m x 4.5m, with a 3m high wall space for painting large works.
Provide a WC, storage racks for paintings, and space for screen printing trays.
Stable daylighting with no direct sunlight on the main painting wall.
Make the studio as environmentally friendly as possible.
Proposed Site Plan
Designing in a Conservation Area:
Working in a Conservation Area carries planning risk, and to manage this we undertook pre-application process with the local authority, who were not willing to accept a studio big enough to meet Chloe’s needs. We therefore developed the design within the parameters of Permitted Development: setting the studio two metres back from the boundary we were able to build an 8m x 5m studio four metres high without the need for full planning. This saved time, money and most importantly created enough wall space for Chloe’s large paintings.
Proposed Plan
Proposed Section
A Bespoke Process:
Every artist has their own unique way of producing art and this is no different for Chloe. Fundamental to her process is the use of a painting trolly. A smooth micro-cement floor allows this to easily move around the whole studio and is hard wearing for longevity. The floor also has the added benefit of being easy to wipe down - important for the drips made during her painting process.
Essential for artists is natural light. We tested this thoroughly using a digital model to ensure no direct light was present on the painting wall and yet the studio has great sense of light even with lots of surrounding trees.
There are also a few functional details; the studio is underfloor heated which frees up wall space, the length of the studio lets Chloe stand back far enough to view a whole painting and a floor plug socket allows for the use of an overhead projector.
Sustainable Design:
Important to Chloe was the environmental impact of the studio.
Not only is the studio a timber framed construction but it is also supported by micro-piles which have been screwed into the ground, meaning very little excavations (good for nearby trees and their roots) and no concrete (good for the environment). Rainwater is collected and stored for watering the garden. Elsewhere we have used eco-friendly wood fibre insulation and a sedum green roof which improves local biodiversity.
Proposed Elevation
Photography: Samer Moukarzel

