Cliff House - Planning Win in Dover
The Chichester Studio is excited to announce that plans for a rear extension in Dover have been granted!
Existing Condition
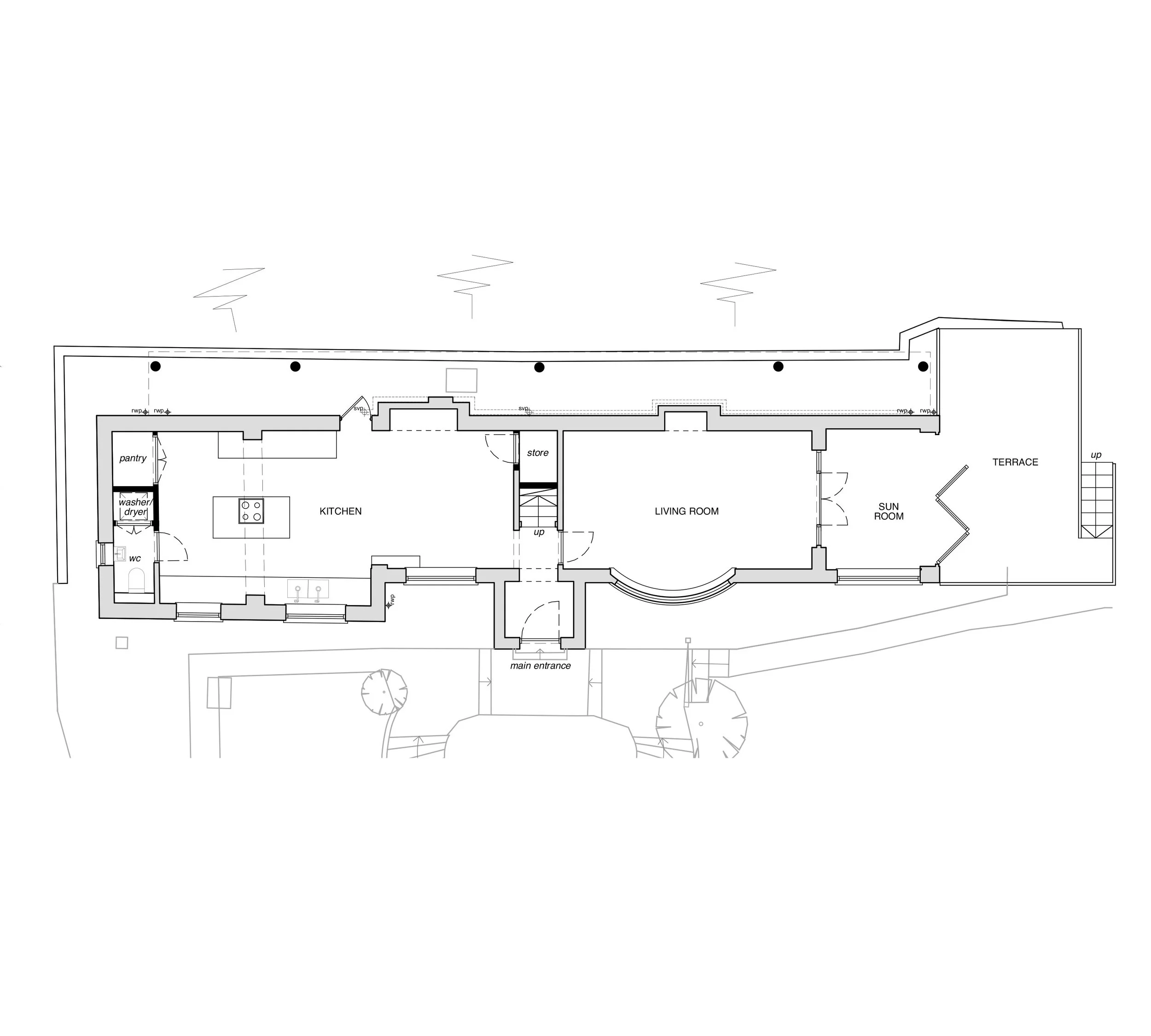
The Proposal
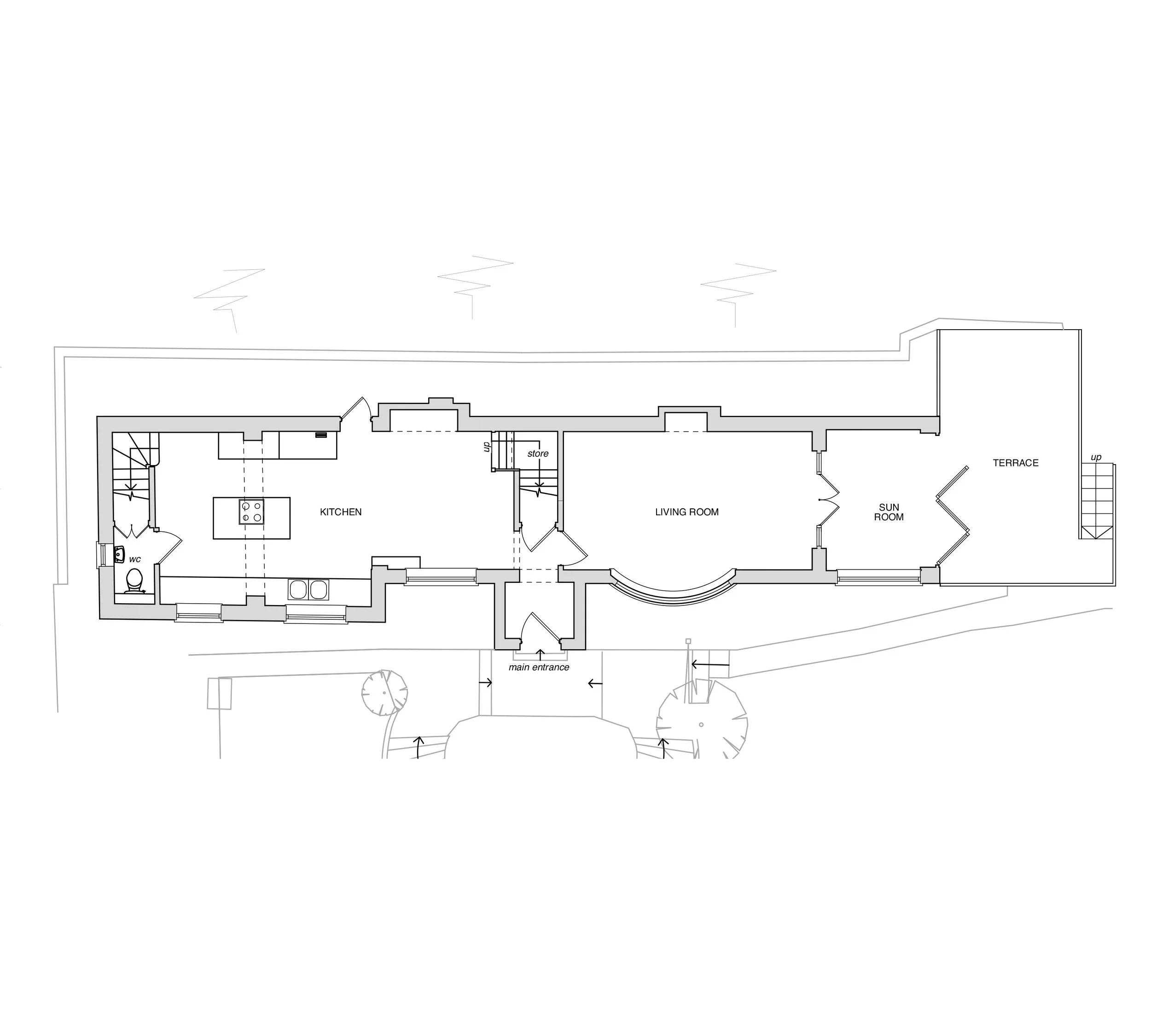
The existing property has a narrow footprint which resulted in an awkward circulation route; with rooms acting as corridors and spaces feeling disconnected.
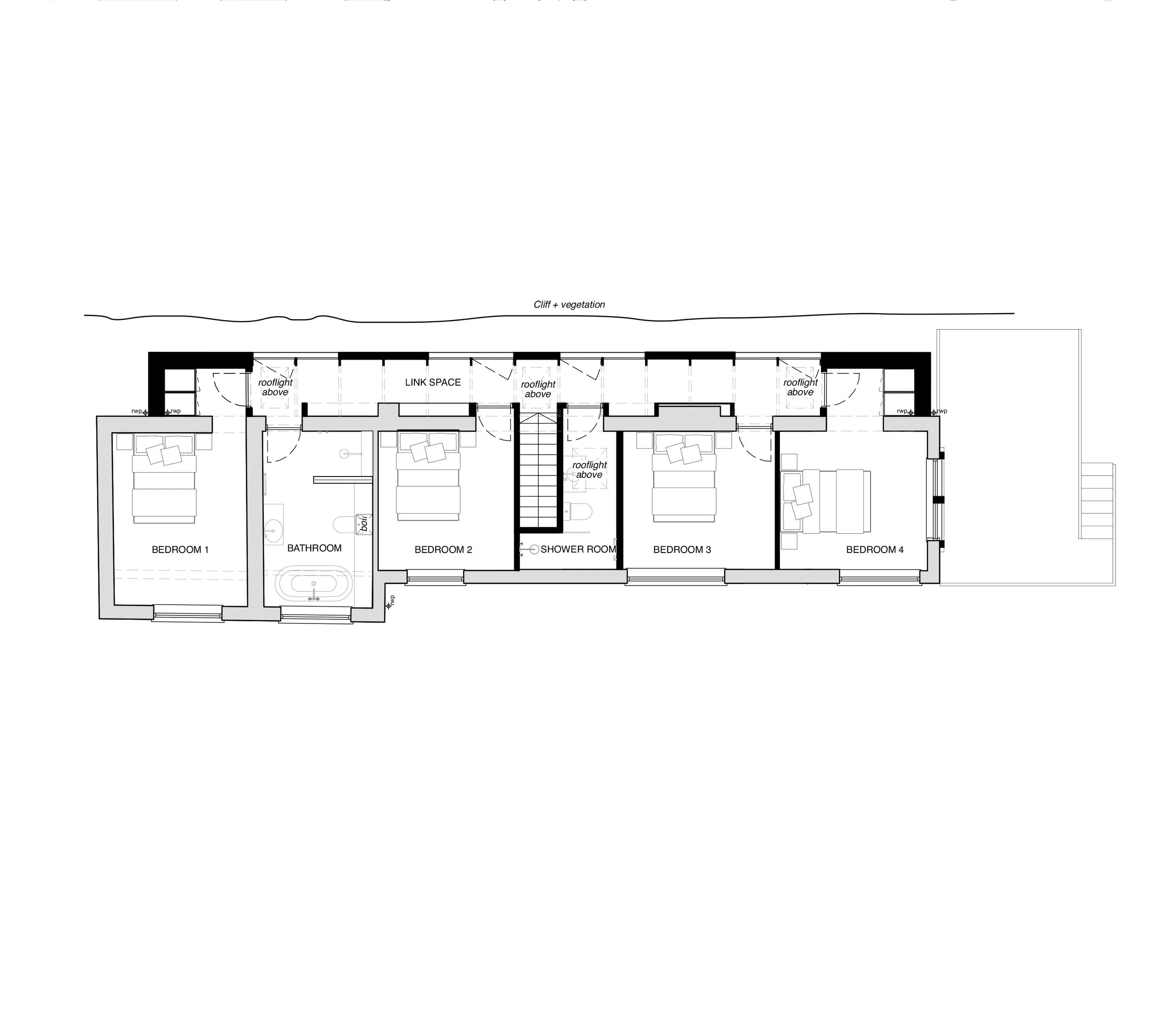
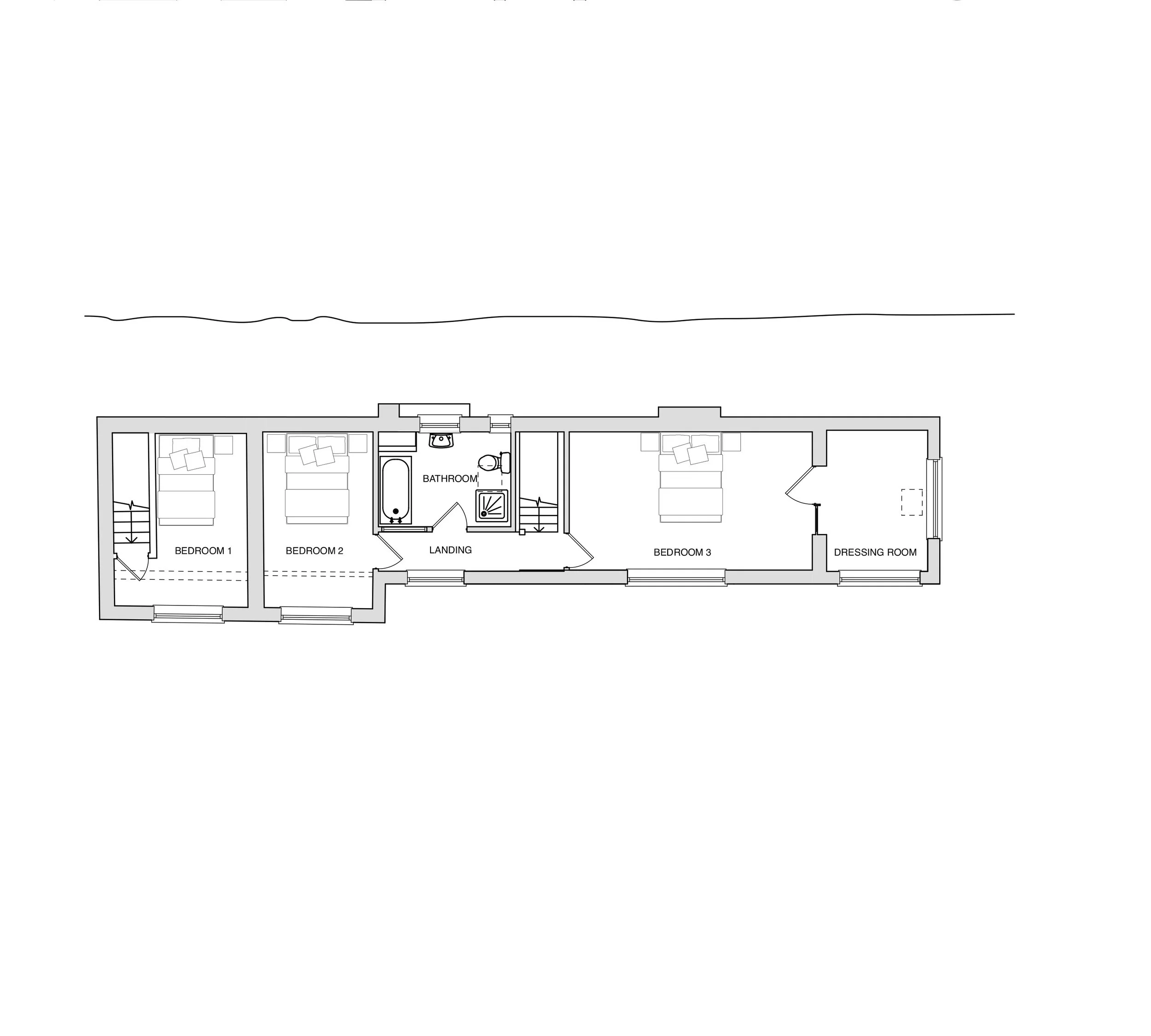
The proposed extension offers a new corridor space to the rear of the property that allows for direct access into the rooms at first floor, creating a much more useable layout.
Existing Ground Floor Plan
Existing First Floor Plan
Proposed Ground Floor Plan
Proposed First Floor Plan
Planning Strategy
The site is within the St Margaret’s Bay conservation area, so particular attention was given to the scale and appearance of the proposal to ensure it was sympathetic to its surroundings and neighbours.
Rear Cliff Elevation
Contextual Design
Working with Dover’s landscape, new windows across the rear of the link provide views onto a chalk cliff and charred timber cladding reflects the character of the local context and existing timber details.

