Goldsmith - Planning Permission Granted
Planning Permission for Goldsmith, a detached house in West London, has been granted!
A design of two halves:
Contemporary charred timber rear facade
Traditional red brick and cast stone front facade
Our design is sensitive to neighbouring properties, with pitched roof lines sloping down to both boundaries. This move enabled us to keep a grand height in the centre of the extension, providing our clients with a fantastic open-plan living space.
With such a deep plan it was important to maintain natural light across all spaces, we have achieved this through two strips of bespoke roof glazing and internal glazed doors creating a through-aspect. The use of integrated blinds and solar control glass helps to prevent glare and excessive heat during the summer months.
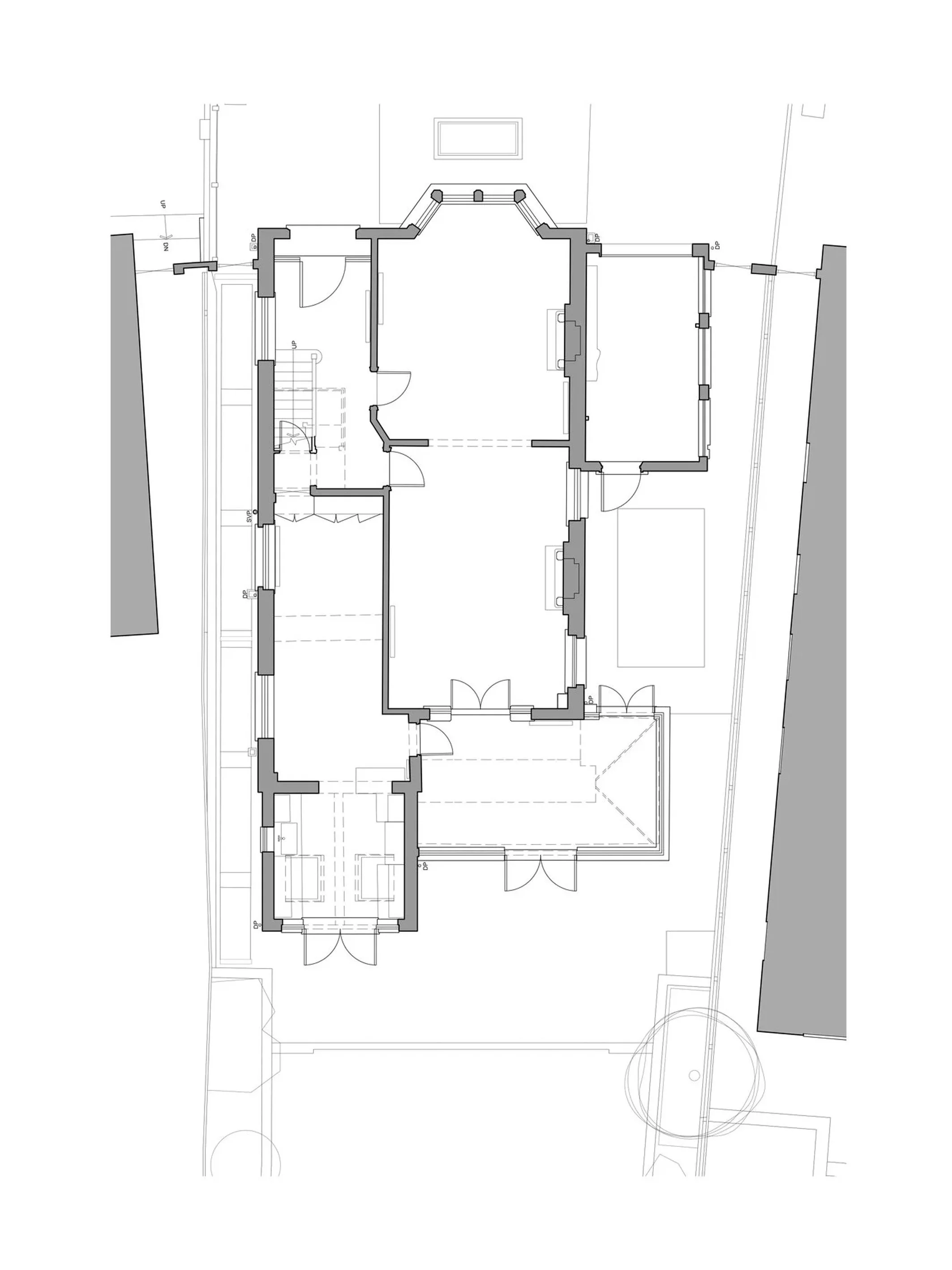
Existing Ground Floor Plan
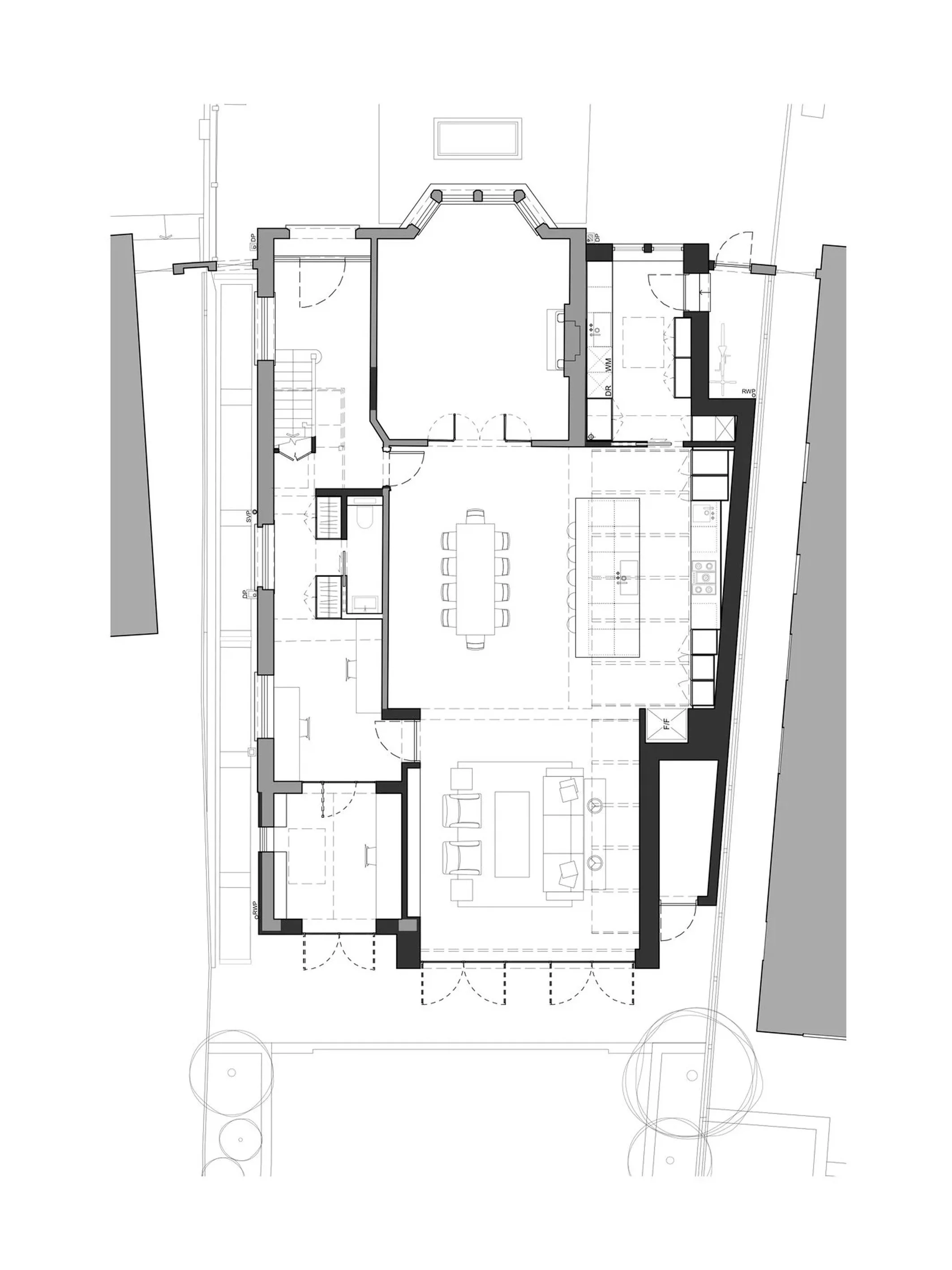
Proposed Ground Floor Plan
An existing conservatory to the rear is to be replaced with a HUGE open-plan kitchen, living and dining room. Additionally, a new utility, WC, home office, study space and garden store are added to the ground floor.
Existing First Floor Plan
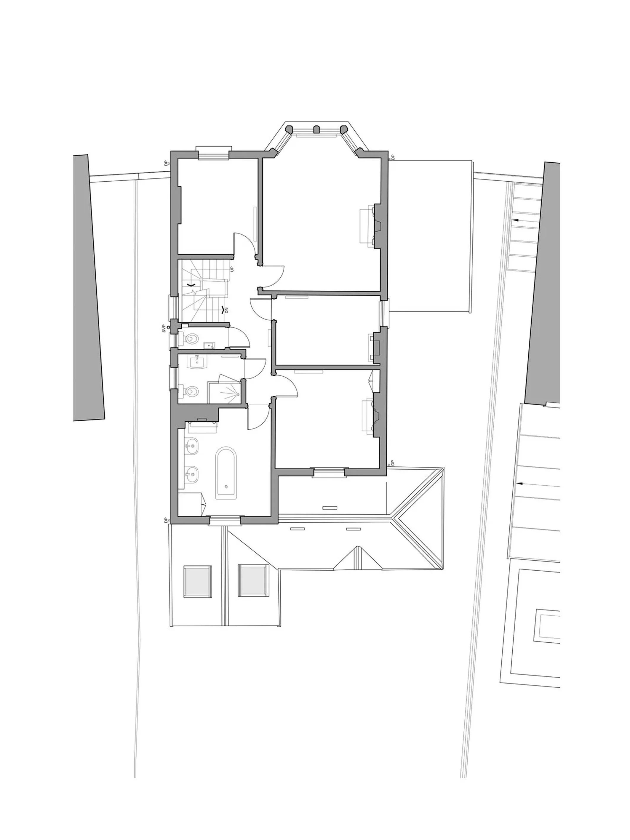
Proposed First Floor Plan
The first floor is to host a bespoke master bedroom, complete with dressing room and a high design ensuite, all made possible through the conversion of three smaller rooms.
Existing Rear Elevation
Proposed Rear Elevation
Charred timber cladding and bronze framed full-height glazing, elegantly contrast and compliment the yellow stock brickwork at first floor.
We can’t wait to take this project to site in early 2023!

