Mole Valley – Planning Permission
We are delighted to announce that our proposals for Betchworth House, in the Green Belt and Local Authority of Mole Valley, have been granted!
Existing Front Condition
Our Approach
The existing house in Surrey is situated within a green belt area. This places heavy restrictions on any new development – including extensions. To enable our client’s wish for both a loft conversion and side extension we split the proposals into 2 applications, therefore reducing planning risk.
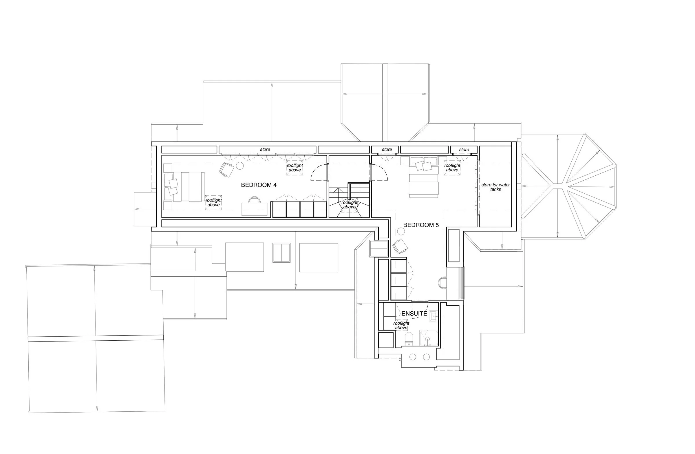
Phase 1 is for a loft conversion to provide two additional bedrooms, an ensuite shower room, and a study space, along with internal alterations to the first floor of the house, to create an amazing new a new master bedroom suite and dressing room.
Existing First Floor Plan
Proposed First Floor Plan
Proposed Second Floor Plan
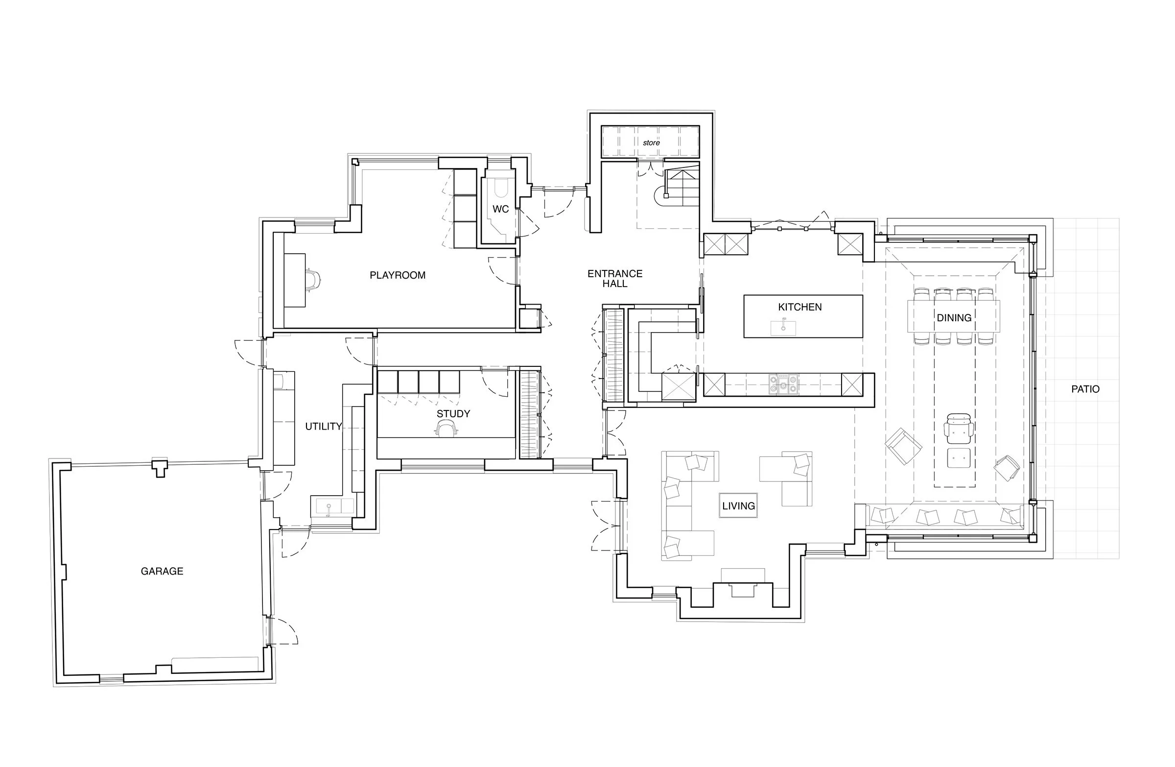
Phase 2 includes a single storey zinc and glass side extension filled with natural light. The extension enables reconfiguration of the ground floor to improve connections with the garden – the kitchen previously disconnected from key social areas.
Existing Ground Floor Plan
Proposed Ground Floor Plan
Proposed Side Elevation
Both planning applications have been granted, fulfilling our client’s vision for a unique home with more space that opens up to the garden – perfect for hosting friends and family.

