Planning Permission for Two-Storey Extension in Dulwich Village Conservation Area
We are delighted to announce that our proposals for an extensive home extension and renovation, in the Dulwich Village Conservation Area has been granted planning permission and approval from the Dulwich Estate!
The Brief
The client brief aimed to extend and reconfigure their home within the Dulwich Village Conservation Area, creating a more cohesive living environment. The ambition was to increase internal floor area, improve natural light, and strengthen the relationship between the house and its garden, while remaining sensitive to the character of the existing property and its conservation setting.
The Proposal
The proposal introduces a new single-storey side extension and replaces the existing rear extension with a combination of single-storey and two-storey additions, providing an additional 85m² of internal space.
At ground level, a contemporary rear extension creates an open-plan living space and is defined by expansive glazing, including a glass corner detail which maximises daylighting and opens up views to the garden.
Existing Ground Floor Plan
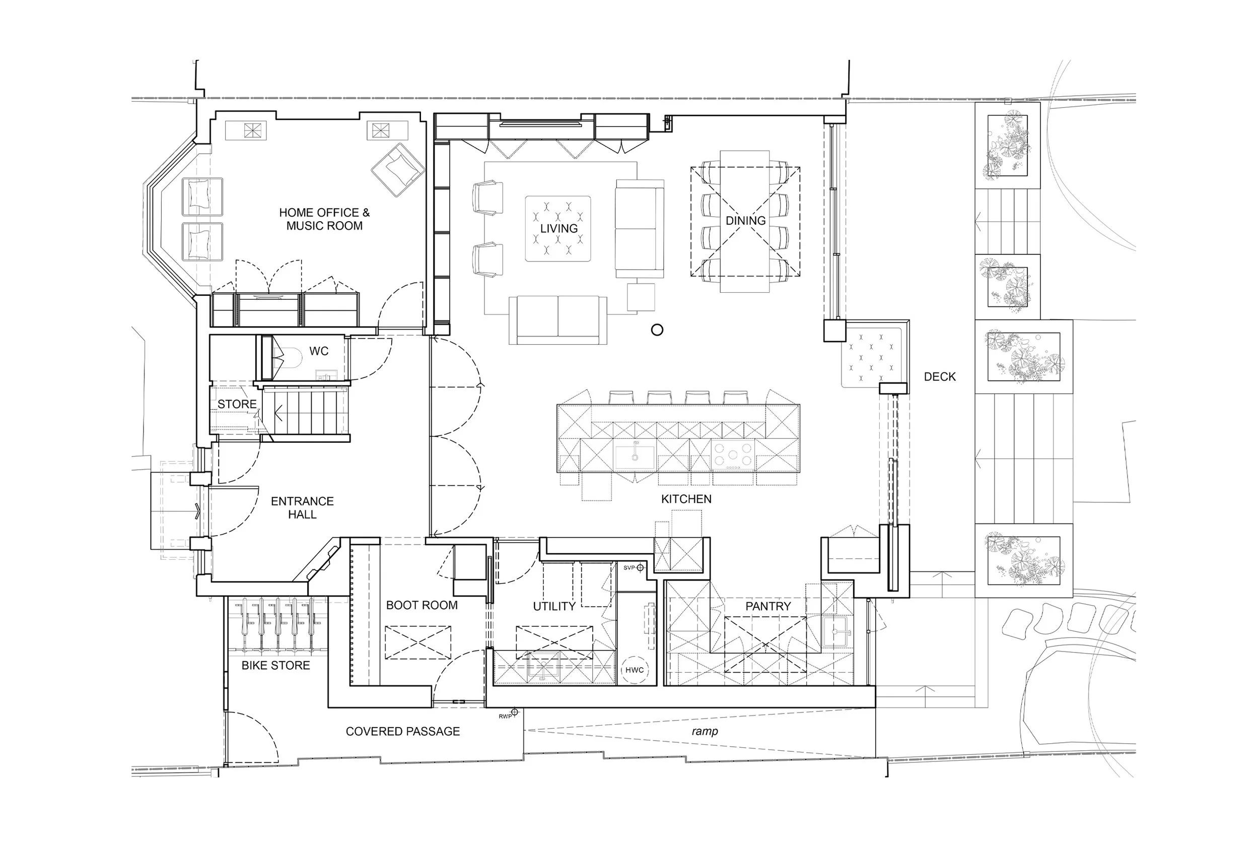
Proposed Ground Floor Plan
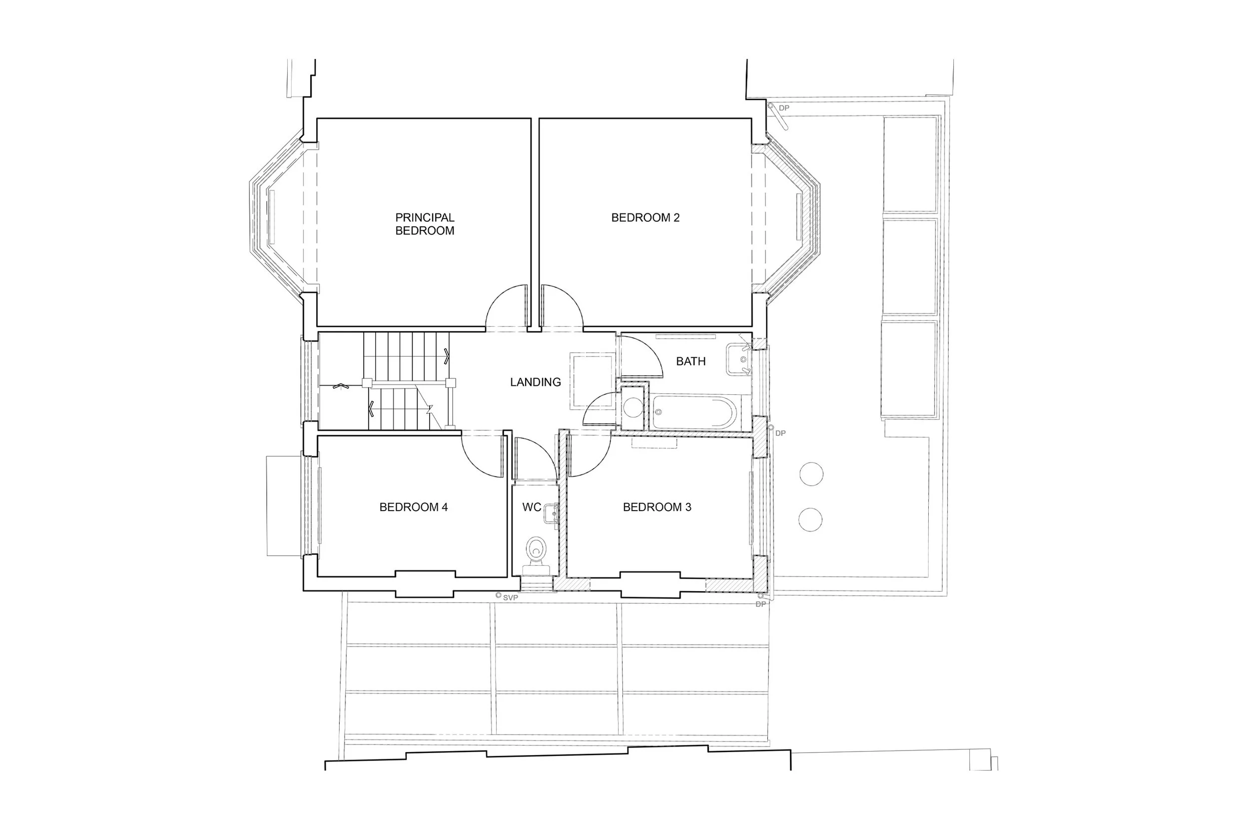
Existing First Floor Plan
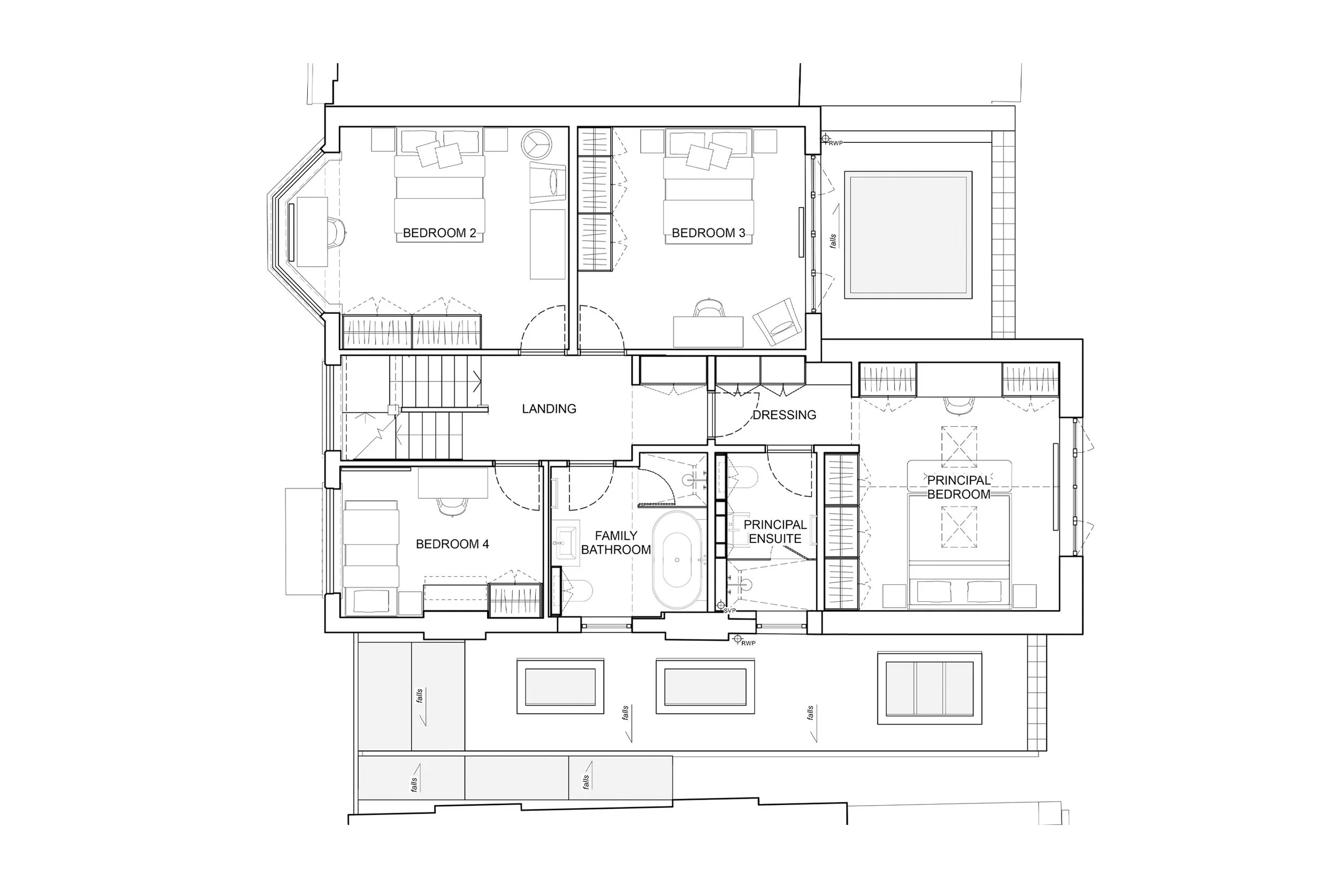
Proposed First Floor Plan
The side extension adopts a pitched roof with red clay tiles to reflect the existing house, and clad using a combination of horizontally and vertically stacked red clay creasing tiles to unify the material palette. The two-storey rear addition continues the original roof geometry, while a new rear dormer improves light and headroom at loft level.
A flat roofed single-storey rear extension incorporates integrated roof glazing, bringing additional daylight deep into the plan. Its parapet is clad in vertically stacked red clay creasing tiles, to visually tie to the side extension.
At the front of the house, areas of existing pebbledash that have deteriorated will be carefully repaired and redecorated in white, refreshing the appearance of the home and preserving its original character.
Proposed Rear Elevation
Proposed Front Elevation

