West Dulwich Planning Permission for glazed extensions
Permissions for a glazed side-return and rear extension have been granted for our project in West Dulwich. We enjoyed the challenge of working with a late victorian building in the Rosendale Road Conservation Area, providing spaces to suit modern family living.
The Proposal
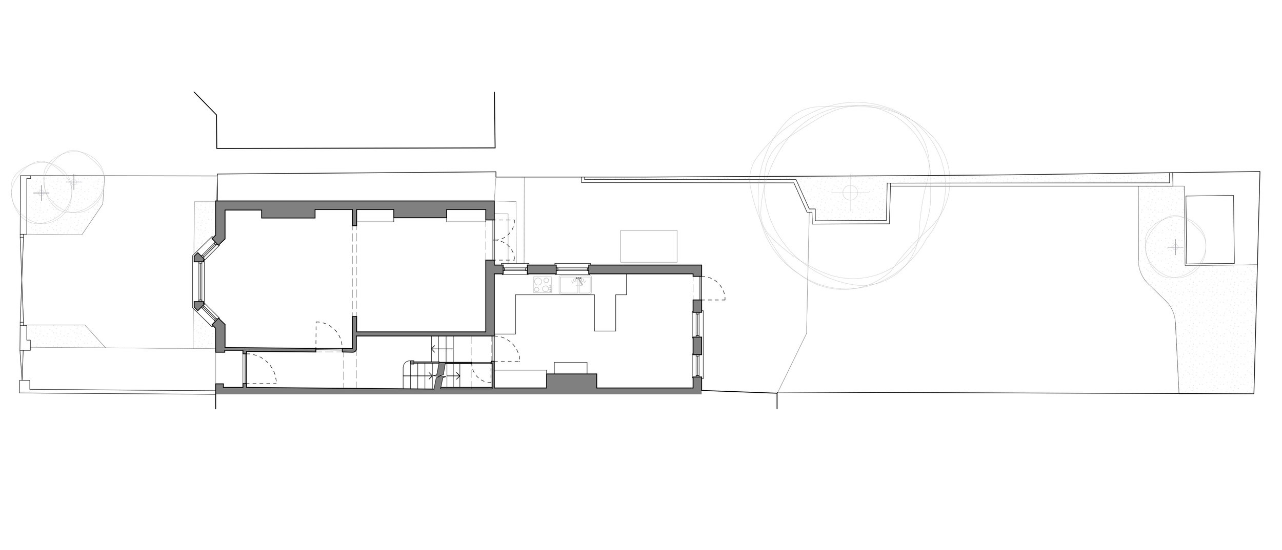
The project will add a contemporary kitchen-diner, utility spaces and secret study at ground floor.
Improving the connection to the outdoors was a primary aim for our clients: we have achieved this through a large glazed pivot door, opening corner with six slim-line sliding doors, and a huge glazed roof in a single piece. The rear extension opens up to the garden, and the continuation of a polished concrete floor to the terrace accentuates this inside-outside connection.
We are excited to take this project to site for Spring 2022.
Existing Ground Floor Plan
Proposed Ground Floor Plan
Existing Rear Elevation
Proposed Rear Elevation

