Burbage Garden Studio - Planning Permission & Dulwich Estate Approval
We are pleased to share that our design proposal for a garden studio within the Dulwich Village Conservation Area has been approved by Southwark Planning and The Dulwich Estate!
The Brief:
The Client’s project brief was to create a multifunctional garden studio for family use, positioned to the rear of their garden at their family home in Dulwich, London. The proposal replaces an existing gym outbuilding and separate shed structure, with the aim of enhancing the overall garden environment. A key requirement was that the building be fully insulated, allowing for comfortable, year-round use.
The site’s location within a conservation area introduced additional complexity, with a protected tree in close proximity influencing both the siting and form of the building.
Existing Elevation
Proposed Elevation
Planning Strategy
Securing approval for a garden building in this highly sensitive context represents a significant milestone, with the design carefully developed to respond to both planning constraints and the character of the surrounding setting - the Dulwich Village Conservation Area.
Applications to the Dulwich Estate Scheme of Management for external works were submitted alongside, and in addition to, the local authority planning application.
The Proposal
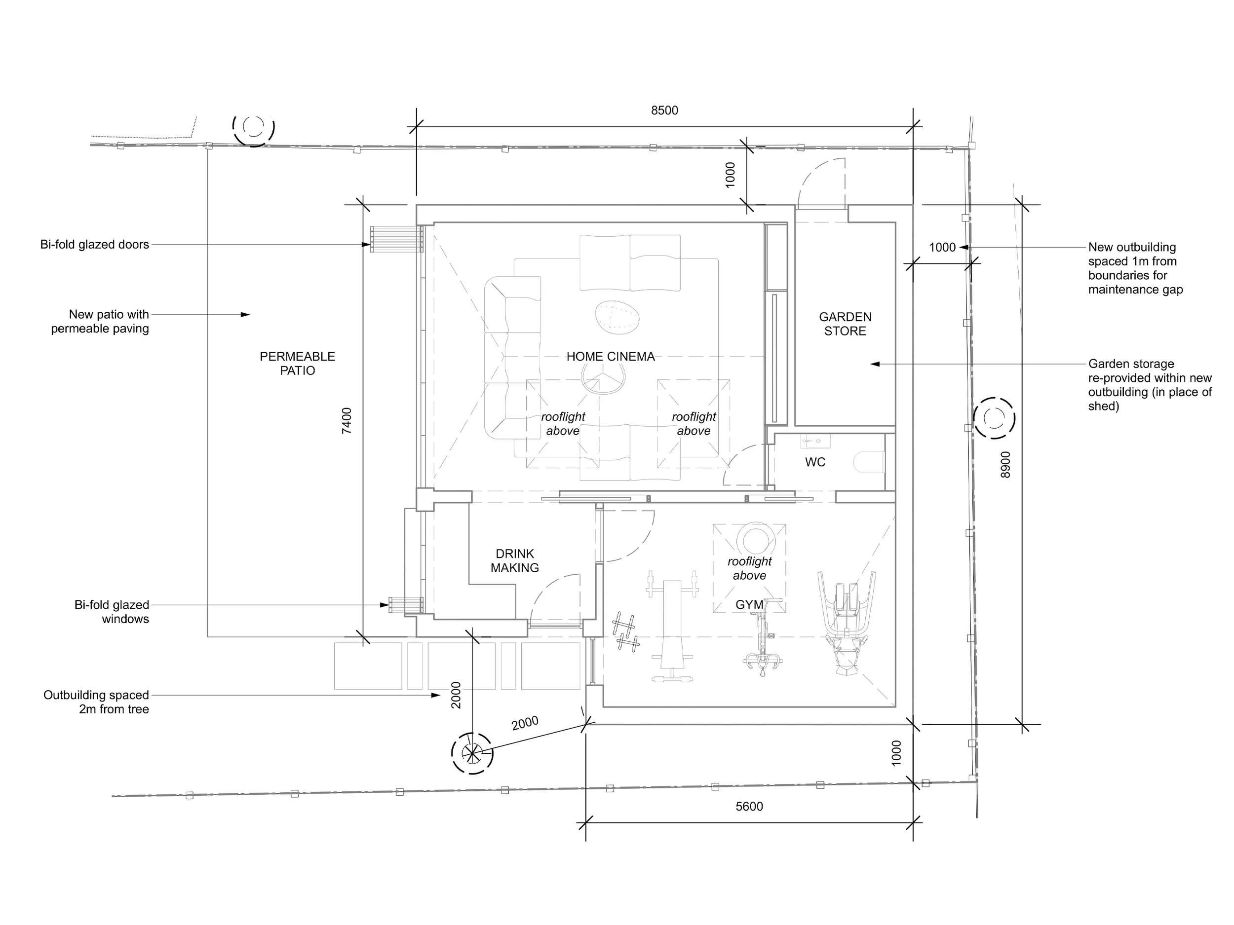
The approved proposal features a single storey garden studio with a hipped apex roof which finishes at the same level as the existing gym. Internally the layout comprises of a new gym, home cinema, drinks station, WC and Garden Store alongside new patio space which supports outdoor living.
Large bifold doors and windows animate the front elevation and open the studio out to the chillout patio.
The studio is finished in charred timber rainscreen cladding which continues seamlessly across both walls and roof planes.
Proposed Plan
A defining feature of the design is the sculpted roof form, which has glazed apex elements that create dramatic internal spaces and draw natural lighting deep into the plan. The sculpted roof form
Early Concept - External Finish
Early Concept - Home Cinema

