Planning Permission Granted for Major Extension to West Wickham House
We are pleased to share that planning permission has been granted for a substantial extension and full reconfiguration of a family home in West Wickham.
The Brief
The project relates to a 1930s detached house in West Wickham, characterised by a traditional cellular layout and an integral side garage. Our clients, a family of six, sought to transform the property into a more generous and adaptable long-term home.
The brief focused on extending and reconfiguring the house to provide five bedrooms and a substantial open-plan kitchen, dining and living space with a strong connection to the garden. Central to the proposal was a complete reorganisation of the plan to improve flow, introduce greater natural light, and create a balance between open, sociable family spaces and quieter, more private rooms.
The Proposal
The approved scheme includes the demolition of the existing garage and the construction of a part single and part two-storey side and rear extension, alongside a loft conversion with a rear dormer and increased ridge height.
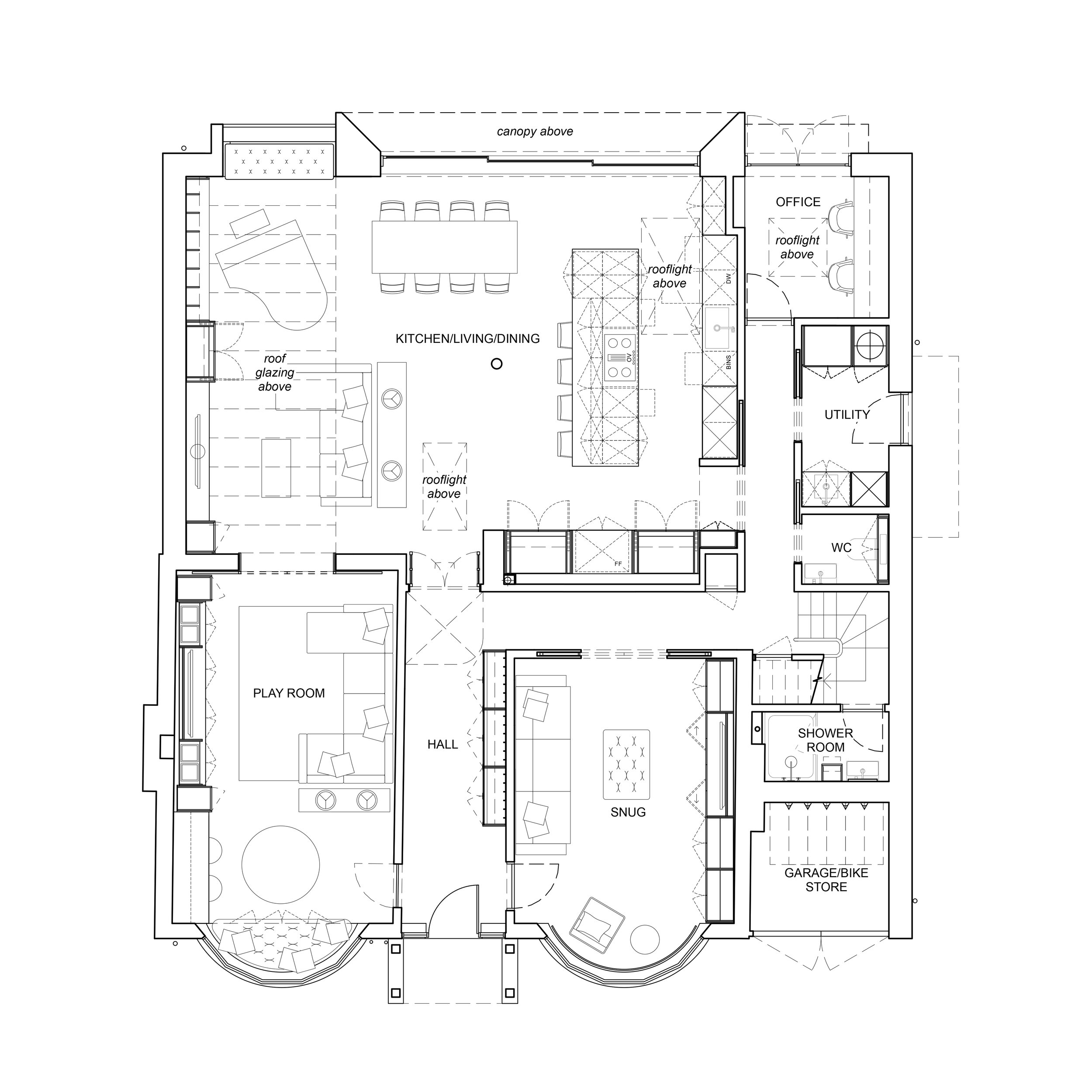
At ground floor level, the layout has been reconfigured to create a large open-plan kitchen, dining and living space across the rear of the house, complemented by more enclosed rooms to the front. New glazing and rooflights bring natural light deep into the plan and strengthen the relationship with the garden.
Existing Ground Floor Plan
Proposed Ground Floor Plan
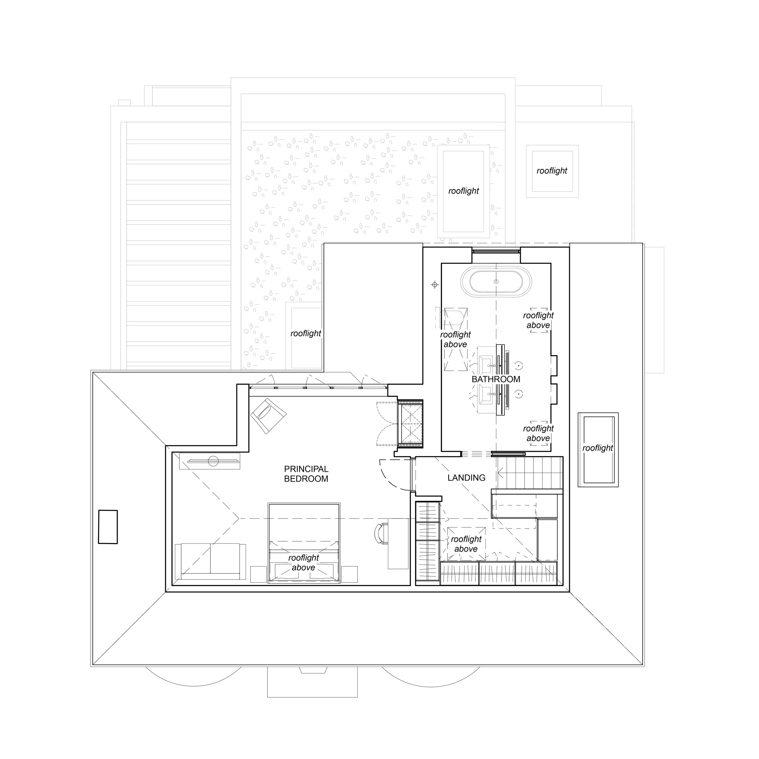
Upper levels are reorganised to provide four bedrooms and a new principal suite within the roof space, making full use of the available volume and improving the overall arrangement of the house.
Existing First Floor Plan
Proposed First Floor Plan
Proposed Loft Plan
Externally, the design combines materials that respond to the existing house with a more contemporary rear expression. A layered palette of light and dark renders, including smooth, textured and terracotta-toned finishes, is complemented by bronze-toned metal detailing and darker cladding elements. Large-format glazing, including slim-framed sliding doors and a structural glass window seat, opens the rear elevation to the garden.
Proposed Rear Elevation

