Planning Permission Granted for a Series of Enhancements to Coastal Home in West Wittering
We are pleased to share that planning permission has been granted for a series of enhancements to a coastal home in West Wittering, Chichester, including roof alterations and a side extension.
The Brief
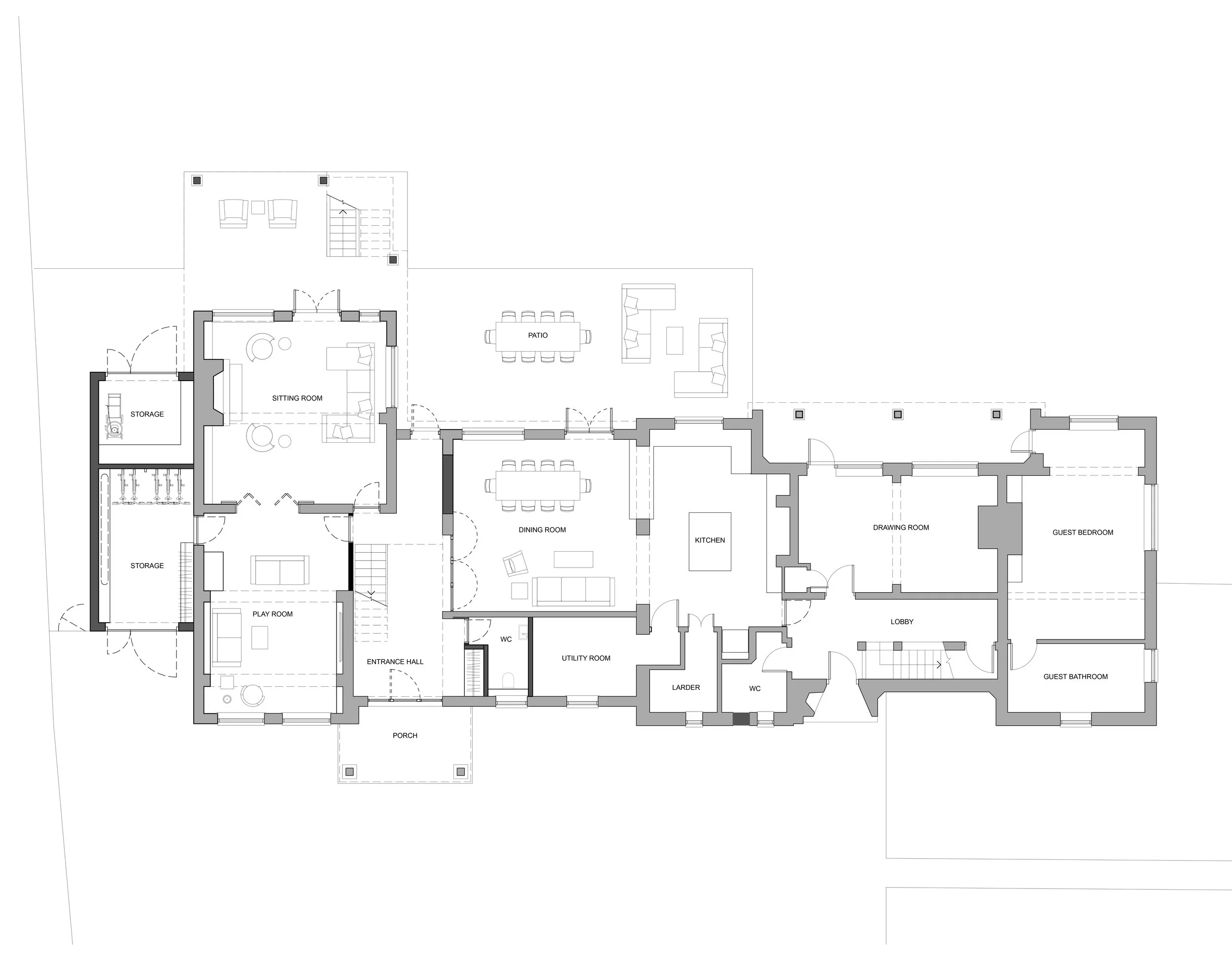
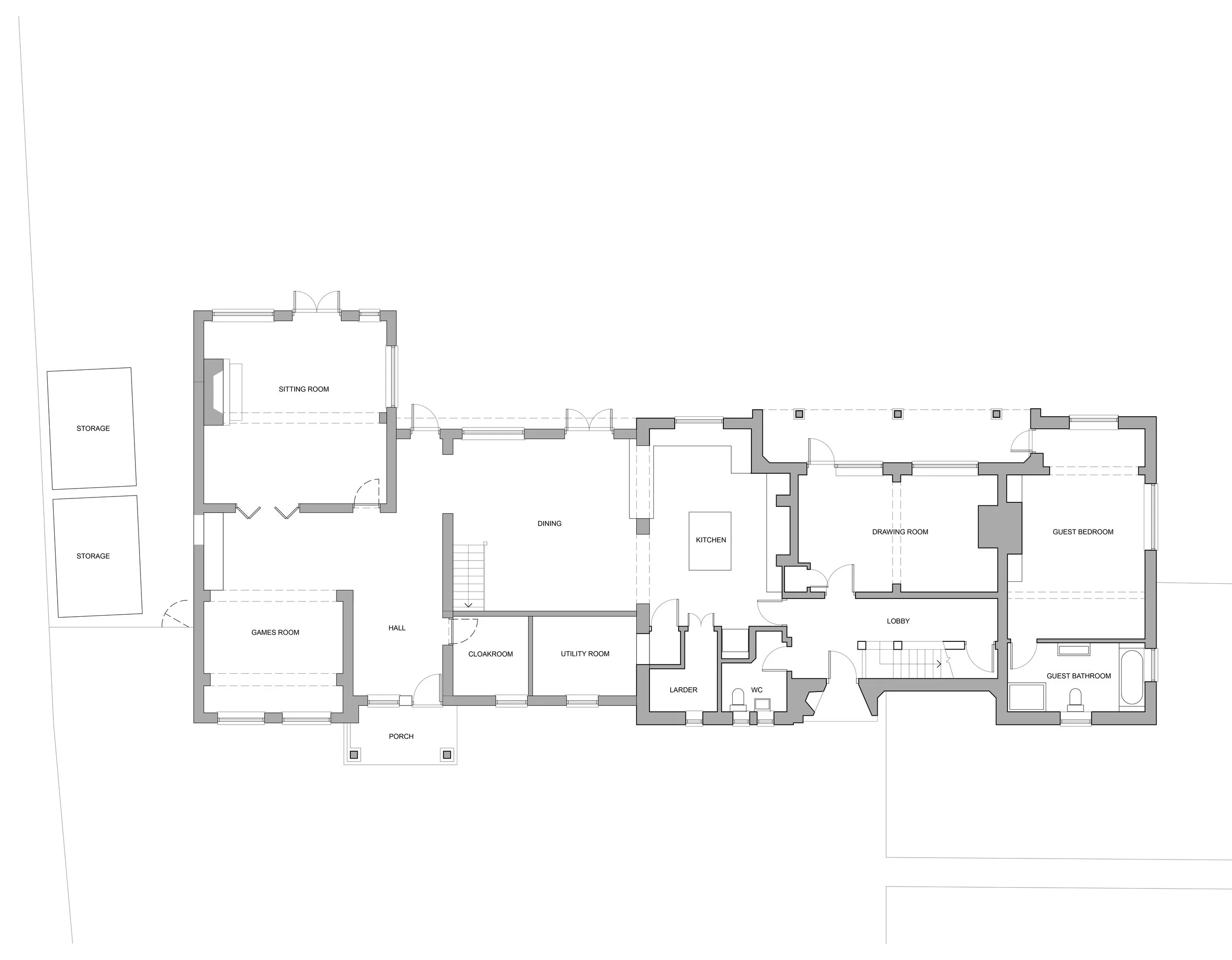
The project relates to a large, detached home located just off West Strand in West Wittering. Our clients approached us looking to refresh the overall look and feel of their home, while creating a layout that better supports family life and seaside living.
The brief includes improvements to the existing roof, new windows and external doors, an extended rear balcony with a new external staircase, and the addition of a side extension.
Planning Considerations
Being close to the sea, the site sits within Flood Zone 3. In response, the design carefully incorporates a range of flood resilience measures, including permeable materials and landscaping, along with setting the proposed floor levels at or above the existing levels to help safeguard the home.
View of House from West Wittering Beach
View to West Wittering Beach
The Proposal
The approved scheme introduces a thoughtful reworking of the home, designed to improve both its appearance and how it functions as a home. Internally, the layout is partially reconfigured, including the relocation of the main staircase to create an improved flow through the house and maximise space in the principal rooms.
A new single-storey side extension provides valuable additional storage for the family, removing the need for the existing outbuildings. It is also designed to be accessed directly from the main house to improve everyday convenience.
Existing Ground Floor Plan
Proposed Ground Floor Plan
Externally, the rear south-facing balcony is extended and paired with a new staircase, using durable materials to create a more generous space that the family can enjoy for years to come.
Existing First Floor Plan
Proposed First Floor Plan
At roof level, the ridge heights at the eastern end of the house are raised to create a more cohesive roofline, with materials carefully chosen to match the existing character and palette. Dormer windows on the north and south elevations are raised to improve natural daylighting internally and to make the most of the costal views.
Across the home, windows and doors are replaced with high-quality double-glazed units in a durable powder-coated metal finish, better suited to the coastal environment. Alongside improvements to the roof and glazing, these upgrades significantly improve the home’s environmental performance.
The single-storey side extension is designed to integrate with the existing house, with a matching roof form and materials including brickwork and flint to create a cohesive addition.
Proposed North Elevation
Proposed South Elevation

